Lot 5 /510 Old County Rd.Wales, MA 01081




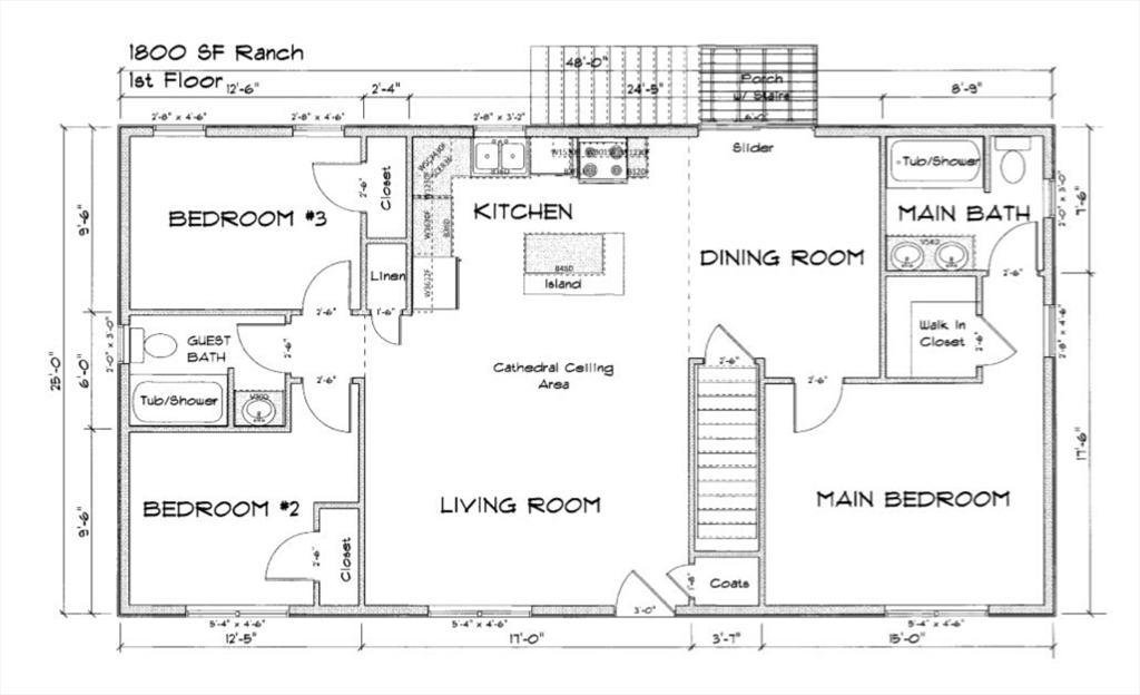
New Custom Ranch with walk out basement to be built on a tree-lined street in a newer subdivision on the Holland / Wales town line with an acre lot. Home features a Living room, Kitchen w/all wood cabinets & granite countertops, Dining room, Main Bedroom & bathroom w/ walk-in closet, 2 other bedrooms & additional full bath. Finished room on the lower level / walk-out-basement. Luxury vinyl plank flooring throughout both levels. Granite countertops in bathrooms. 200 amp electrical. Vinyl siding. 2 car garage underneath w/electric openers. Heating system is a dual fuel system. Hot water is from a high efficiency electric heat pump hot water heater. Appx 2 miles to Lake George. Public beach & boat ramp. Pictures are of similar homes builder has built and Lake George. Option to choose your own finishes. Potential to customize &/or add a bath or FP on lower level. Part of the Tantasqua / Union 61 School District. Come make this home your own!
| 4 hours ago | Listing updated with changes from the MLS® | |
| 11 hours ago | Listing first seen on site |
The property listing data and information, or the Images, set forth herein were provided to MLS Property Information Network, Inc. from third party sources, including sellers, lessors, landlords, and public records, and were compiled by MLS Property Information Network, Inc. The property listing data and information, and the Images, are for the personal, non-commercial use of consumers having a good faith interest in purchasing, leasing or renting listed properties of the type displayed to them and may not be used for any purpose other than to identify prospective properties which such consumers may have a good faith interest in purchasing, leasing or renting. MLS Property Information Network, Inc. and its subscribers disclaim any and all representations and warranties as to the accuracy of the property listing data and information, or as to the accuracy of any of the Images, set forth herein.
Last checked 2026-03-09 11:43 AM UTC
